Floor Plan

Explore FerroHub Mall floor by floor. Tap on any level to see the layout and find where your favourite stores are located.

17
Occupied stores
2
Vacant spaces
1,423 sqft
Events space
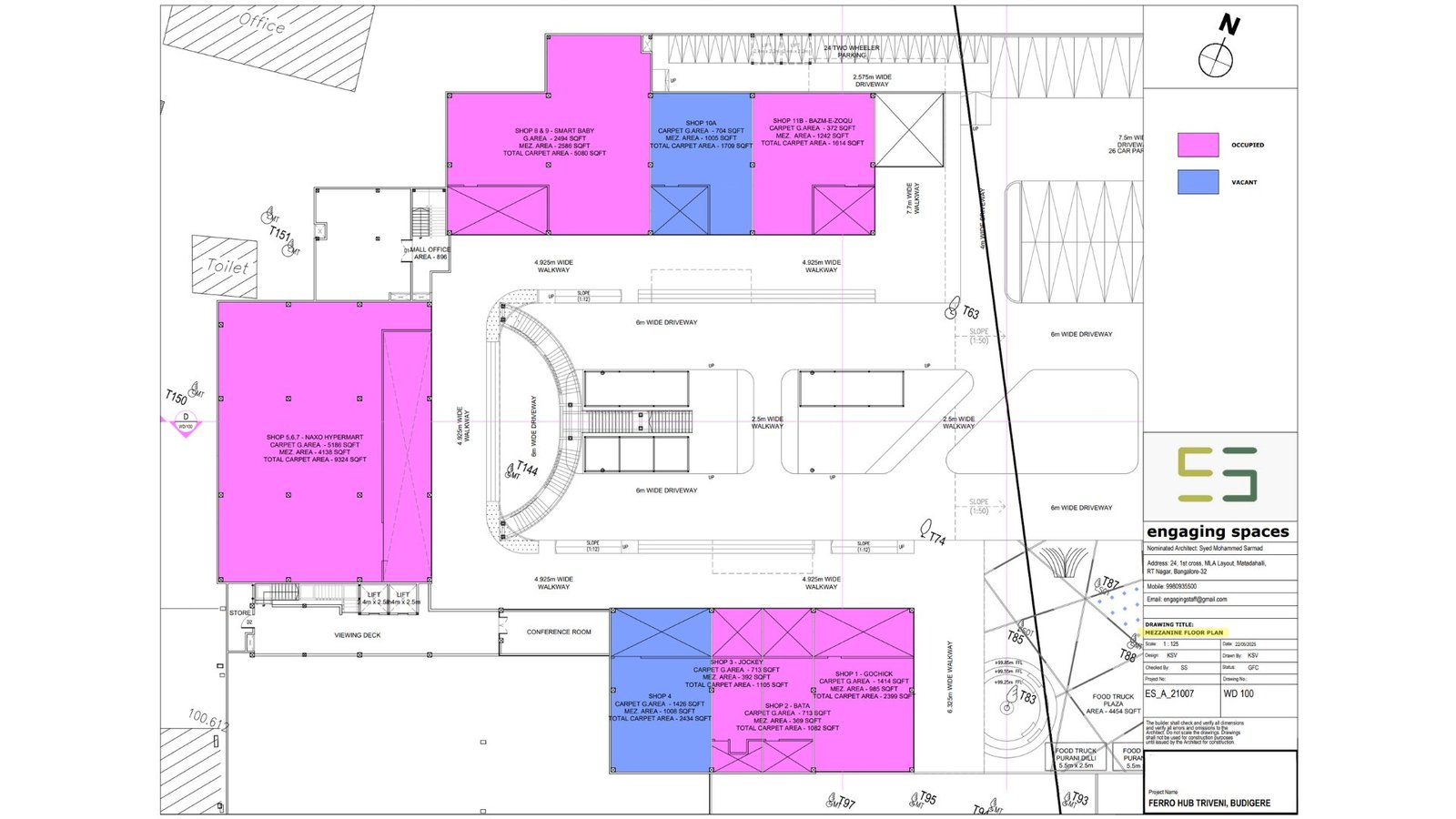
Ground Floor Plan
Occupied
Vacant

Stores on Ground Floor

Naxo Hypermarket
Shop 5,6,7 · 9,324 sqft
Smart Baby
Shop 8&9 · 5,080 sqft
Starbucks
Shop 12 · 1,257 sqft
Bazm-e-Zauq
Shop 11B · 1,614 sqft
Samosa Party
Shop 11A · 737 sqft
Bata
Shop 2 · 1,082 sqft
Jockey
Shop 3 · 1,105 sqft
Go Colours
Shop 1 · 2,399 sqft
Foot Lounge
Shop 4 · 2,434 sqft
Mobicity
Stall 1 · 445 sqft
SW
Subway
Kiosk · 297 sqft
PB
Polar Bear
Kiosk · 1,081 sqft
Churro Land
Kiosk · 3m×3m
PJ
Pressed Juicery
Kiosk · 3m×3m
AC
ACCS 1
Kiosk · 3m×3m
10A
Shop 10A — Vacant
1,709 sqft · Available
10B
Shop 10B — Vacant
526 sqft · Available
4
Occupied stores
896 sqft
Mall office
Viewing Deck
+ Conference Room
Mezzanine Floor Plan
Occupied
Vacant

Stores on Mezzanine Floor

Smart Baby
Shop 8&9 Mezz · 2,586 sqft
Jockey
Shop 3 Mezz · 392 sqft
Go Colours
Shop 1 Mezz · 985 sqft
Foot Lounge
Shop 4 Mezz · 1,008 sqft
3
Occupied stores
8
Vacant spaces
12
Stall spaces
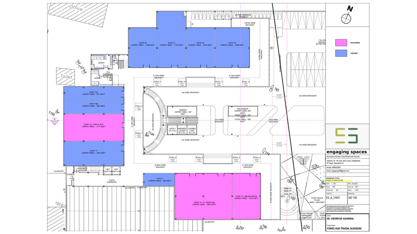
First Floor Plan
Occupied
Vacant

Stores on First Floor

Toni & Guy
Shop 15 · 1,771 sqft
RXDX Lab
Shop 15,16 · 2,881 sqft
Beijing Bites
Shop 14 · 1,414 sqft
19
Shop 19A — Vacant
871 sqft · Available
19
Shop 19B — Vacant
885 sqft · Available
17
Shop 17 — Vacant
1,801 sqft · Available
20
Shop 20 — Vacant
1,238 sqft · Available
21
Shop 21 — Vacant
1,754 sqft · Available
22
Shop 22 — Vacant
1,244 sqft · Available
23
Shop 23 — Vacant
1,499 sqft · Available
20,237 sqft
Open retail space
Phase 2
Coming soon
Phase 2 Ground Floor Plan

Interested in Phase 2 space?

20,237 sqft of prime retail space available for leasing.

Contact for Leasing →
4
Terrace blocks
Events
Open-air venue
Terrace Floor Plan

Terrace Areas

N
Terrace North Block
8,777 sqft + 1,662 sqft
W
Terrace West Block
7,117 sqft
S
Terrace South Block
1,340 + 5,762 sqft
EV
Events & Open-Air Space
Live music, flea markets, community events